안녕하세요. 채재현입니다.
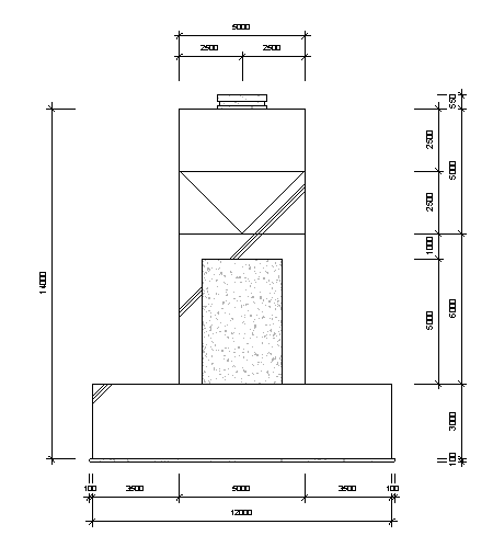
저희 샘플 교재에서는 교각 기둥은 내부가 비어 있는 형식으로 구성되어 있습니다.
하지만 이미지에서는 교각 기둥 내부까지 재료가 있는 구조물이 있는 형태로 보입니다.
그리고 교각단면도의 절단 패턴관련 아래 내용 참고하여 주시기 바랍니다.
[재료 패턴 설정 관련]
잘라내기(절단) 패턴을 설정할 때, 두 가지 옵션이 있습니다
1) 전체 기둥 카테고리에 대해 절단 패턴 설정:
가시설 그래픽 설정 창을 통해 프로젝트 내 모든 기둥에 동일한 절단 패턴을 적용할 수 있습니다.
2) 선택한 객체에만 절단 패턴 설정:
특정 기둥 객체를 선택하여 절단 패턴을 개별적으로 설정할 수 있습니다.
<전체 기둥 카테고리 재료 패턴 설정>

<선택한 객체의 재료 패턴 설정>


<잘라내기(절단) 패턴의 단면도 위치>
잘라내기 패턴의 단면도 위치는 객체를 절단하는 구간에 정확히 위치해야 합니다.
