안녕하십니까?
1판 3월 19일 발행 교재를 보며 인강을 듣다 궁금한 것이 생겨 문의글 남깁니다

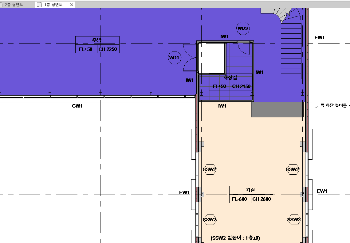
[02 건축모델링-천장작성]
Q&A게시판에서도 찾아보았는데
천장의 높이를 방에 주어진 천장높이 CH와 FL를 보고 계산하여 입력하신 것으로 확인하였습니다
그런데 제공받은 예제학습파일과 내용이 상이한 부분이 있어 여쭙니다.
첨부한 파일을 보시면 주방 FL+50/CH2250, 거실 FL-600/CH 2600으로 되어있습니다
그렇다면 첨부한 파일을 참조한 경우
각 룸의 천장 높이는 주방 2300, 화장실 2200, 거실 2000이 맞는지요?
시험에서는 각 룸의 CH가 다를 때 주어진 값에 따라 각 룸의 천장 높이를 다르게 입력하는게 맞을까요?
(참고로 03 도면작성에서 불러온 천장은 CH2400이 맞습니다)
[03 도면작성-시트작성]
마찬가지로 강의 영상과 교재의 내용이 상이한 것 같아 질문 드립니다
733p에 5. 시트작성에 2번 번호 및 이름에
A-001 건축평면도 1층, A-002 건축평면도 2층이라고 되어 있고
6. 뷰 배치 : 2개의 뷰를 임의의 위치에 가로로 배치라고 되어 있습니다
그렇다면 시트이름란에 각각 건축평면도 1층과 건축평면도 2층으로 작성하고
A-001 건축평면도 1층에 건축평면도 1층의 도면을 임의의 위치에 드래그 하고,
A-002 건축평면도 2층에 건축평면도 2층의 도면을 임의의 위치에 드래그 하여
총 2개의 시트가 작성되는 것이 시험에 주어진 답안이 맞는 것이 아닌지 여쭙니다