안녕하세요. 채재현입니다.
아래와 같이 답변드립니다.
1. 답변
첨부해주신 이미지로는 정확한 원인을 판단하기는 어렵습니다.
아래 이메일로 파일을 보내주시면 검토해 드리도록 하겠습니다.
이메일 : cowogus77@gmail.com
2. 답변
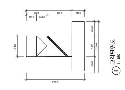
교각단면도의 절단 패턴 설정관련
잘라내기(절단) 패턴을 설정할 때, 두 가지 옵션이 있습니다
1) 전체 기둥 카테고리에 대해 절단 패턴 설정:
가시설 그래픽 설정 창을 통해 프로젝트 내 모든 기둥에 동일한 절단 패턴을 적용할 수 있습니다.
2) 선택한 객체에만 절단 패턴 설정:
특정 기둥 객체를 선택하여 절단 패턴을 개별적으로 설정할 수 있습니다.
<전체 기둥 카테고리 재료 패턴 설정>

<선택한 객체의 재료 패턴 설정>


<잘라내기(절단) 패턴의 단면도 위치>
잘라내기 패턴의 단면도 위치는 객체를 절단하는 구간에 정확히 위치해야 합니다.

3. 답변
단면도는 가로 또는 세로 방향에 따라 보여지는 뷰가 달라집니다.
작성 시 단면 방향을 먼저 확인해 보시기 바랍니다.
또한, 교재와 인강에서는 교각 기둥이 타원 형태입니다.
공개문제에서는 교각 기둥은 원 형태로 도면이 제시되어 있습니다.
4. 답변
이미지에 표시된 초록색 선형은 원곡선(곡선부)을 의미합니다.
이는 선형 스타일 설정에서 원곡선을 초록색, 완화곡선을 분홍색으로 지정했기 때문입니다.
터널과 교량 구간은 교재 및 인강에서와 같이 종단 계획이 설계되었다면,
코리더에서 영역을 구분하여 각각 터널 및 교량 구간으로 정의할 수 있습니다.
5. 답변
현재 사용 중인 Civil3D 파일에 템플릿이 적용되지 않은 것으로 보입니다.
Civil3D 템플릿 적용 방법은 아래 제 개인 블로그 내용을 참고하시기 바랍니다.
https://blog.naver.com/cowogus77/223827745500
6. 답변
공개문제의 표준횡단에 표시된 10m 치수 및 -2% 경사 표시는,
단순 표기용 CAD 문자와 객체로 작성된 것입니다.
Civil3D 표준횡단 작성 시 자동으로 생성되는 요소가 아니며,
CAD의 Text, Line 명령을 이용해 작성할 수 있습니다.
위와 같이 답변 드리며, 추가로 한솔아카데미 로그인 하셔서 학습 자료실 내용도 참고해 보시기 바랍니다.
https://bim.inup.co.kr/board/read.jsp?id=1067057&code=pds