온라인강의
HOME>학습게시판>학습Q&A
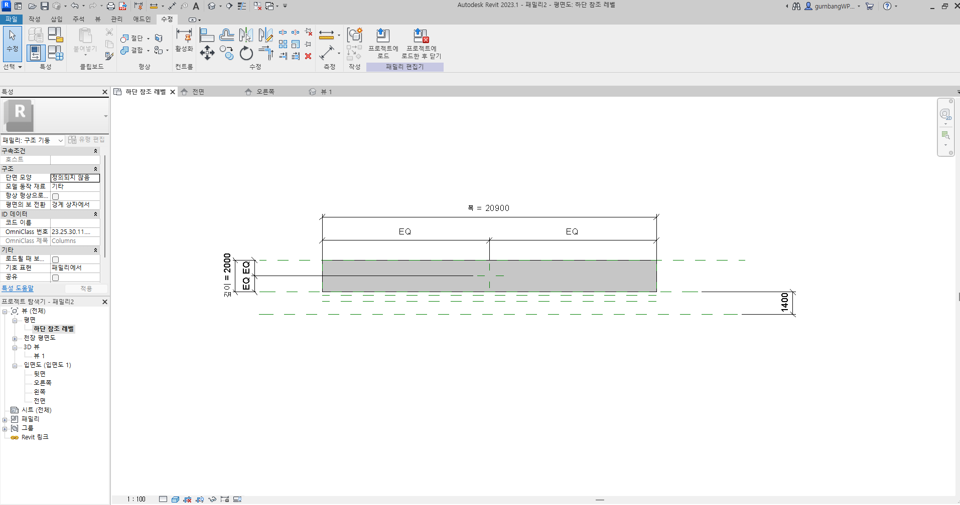
212PG 교재에는 아래 (1400)까지 하단참조레벨에서 표시가 되는데, 제 화면에서는 보이지 않습니다. 교재만 따라하는데, 해결하지 못해서 문의드립니다. 감사합니다.
안녕하세요. 채재현입니다.
뷰 범위를 다음과 같이 설정하시기 바랍니다.
[하단 참조 레벨]의 뷰 범위 옵션에서 상단과 절단 기준면을 “무제한”으로 설정하거나, 최대한 큰 값을 입력해 보시기 바랍니다.
목록